江蘇大學商用廚房工程案例展示
對于餐飲業廚房工作流程的設計,一個理想的廚房設計方案有以下優點:
不但可以使廚房空氣清新,環境衛生,廚師在烹調過程中能夠得心應手,而且可以使廚房各部門之間能夠相互協調,操作暢順。
反之,由于各區域設計不合理,設備擺放混亂:排煙通風、機電、給排水設計不到位,工作行走路線規劃不合理,很容易造成廚房環境臟亂差,在操作過程中導致食物交叉污染而且可能造成廚房環保及衛生防疫驗收不能達標,不能通過驗收。
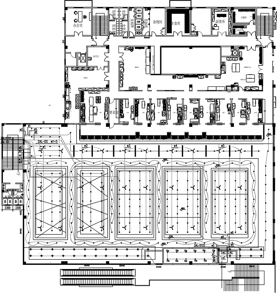
面積:2000平
廚房設備:商用四門冰箱+片冰機+制冰機+平冷操作臺等廚房電器
項目情況:江蘇大學食堂,首先對整體場地的考察廚房面積,每天人流量,菜單,所對應出相應的設備,規劃出合理的空間。

南京宇杰服務流程
需求溝通
設計方案
設備生產
施工安裝
售后維護
【產品名稱】臺式凹面小炒灶
【額定功率】 500W
【產品型號】KEM-PAJ300-2
【產品尺寸】410*480**200mm
【額定電壓】220V/50Hz
咨詢熱線
180-2151-3777